Palm Beach Garage
Contractor: Gast Construction Group
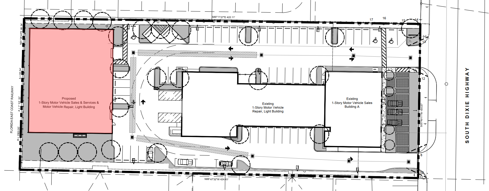
Project Scope: Add 10.000 SF vehicle storage building at back of property

Site plan

Floor plan

North view – before

North view – after

Front overall view

Front close up

Interior view 1

Interior view 2

Interior view 3