↓ Skip to Main Content
David Porter Associates – Architects, Inc.
Founded 1981
Founded 1981
Home
About
About David Porter
Resume
Tools
Committees & Volunteer Work
Contact Information
Custom Homes
Residential Additions/Renovations
Porches
Medical/Dental
Restaurant/Food Facilities
Commercial
Commercial, Retail, and Industrial
Commercial Additions/Renovations
Other Projects/Services
Community and PUD Features
Automotive
Parks, Recreation and Sports Facilities
International Projects
Equestrian
Art in Public Places
Retirement and Nursing Homes
Color Studies
Example Drawings
Other Services
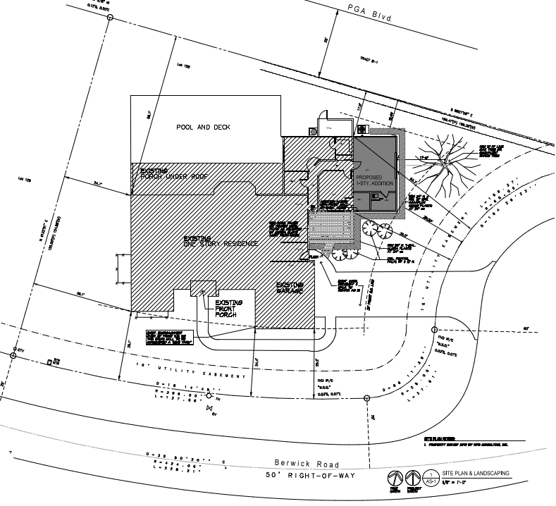
MacDonald Residence
Scope
: Addition
Before house
Completed addition
Before plan
After plan