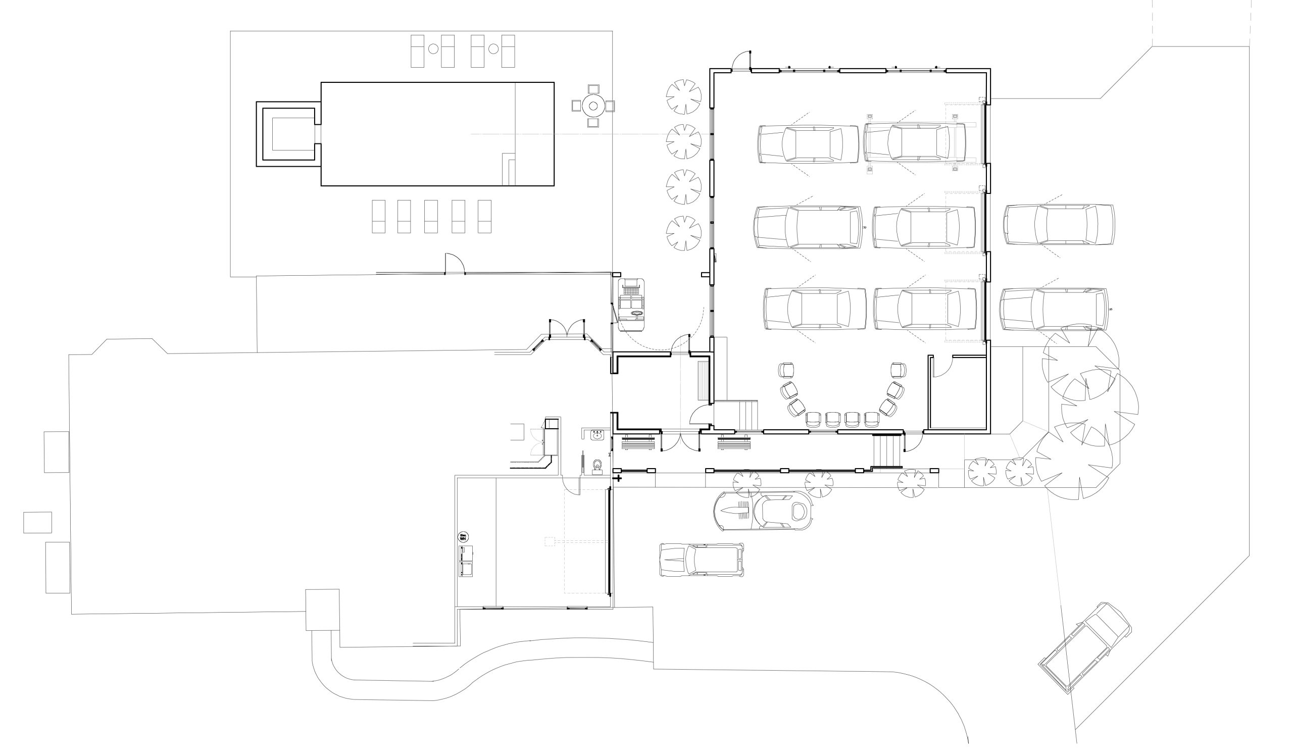
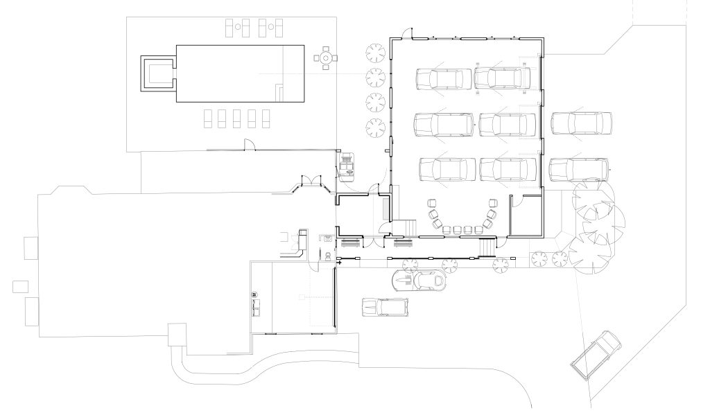
Massari Residence

Scope: Add new foyer, front porch, and garage to existing house

Existing plan

New plan

Existing front

Almost completed front

Aerial before

Aerial after